GALLERI ESPOLIN
Storvågan, Kabelvåg, Vågan kommune
Kaare Espolin Johnson har sine aner fra Island. Hans tipptipp oldefar bodde ved Eyafjördur på Nord-Island. Selv bodde Kaare Espolin Johnson bl.a. i Øst-Finnmark under sin oppvekst. Han har vært meget opptatt av torvgammen slik han opplevde den i Finnmark, men har var også fascinert av de gamle torvhusan. Interessen var blitt ytterligere skjerpet gjennom utgravningene i Vågar, som han har fulgt gjennom sine opphold i Alterosen ved Kabelvåg.
Galleriet er gitt en beskjeden ytre form, en hovedform som følger og underordner seg landskapet, men med presise markeringer i form av inngangsparti, gavler og andre fremstikkende bygningsdeler. Den nære beliggenheten til middelalderbyen Vågar og den bevaringsverdige Storvågan Gård setter begrensinger på utformingen av galleriet. Torvtak og torv opp mot veggene er viktig elementer i en slik tilpasning.
Galleriet er søkt gitt en norsk, moderne form, med assosiasjoner til Vågar’s middelalderbygninger og det gamle islandske torvhuset, men fremfor alt søker galleriet å uttrykke kunstneren og mennesket Kaare Espolin Johnson.
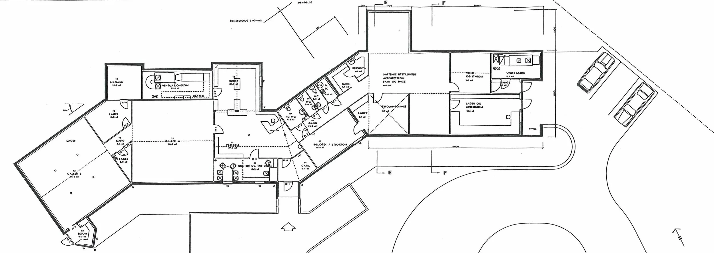
Innvendig er galleriet en rekke av enkeltrom, og en vandring fra rom til rom som gir varierte opplevelser.
Foruten to utstillingssaler med permanent utstilling, rommer galleriet bibliotek, videorom, aktivitets/arbeidsrom, galleri for skiftende utstillinger og resepsjon.
STED
Storvåganveien, 8310 Kabelvåg
OPPDRAGSGIVER
Galleri Espolin AS
Kontaktperson:
Liv Helfjord Marhaug
ARKITEKT
Gisle Jakhelln
UTFØRT
1990 - 92 og utvidelse 2006
AREAL
548 m2 BRA
PROSJEKTKOSTNAD
21,8 millioner kr. totalt
BOARCHS TJENESTER
Romprogram og arkitektarbeider alle faser

 
             
             
             
             
            